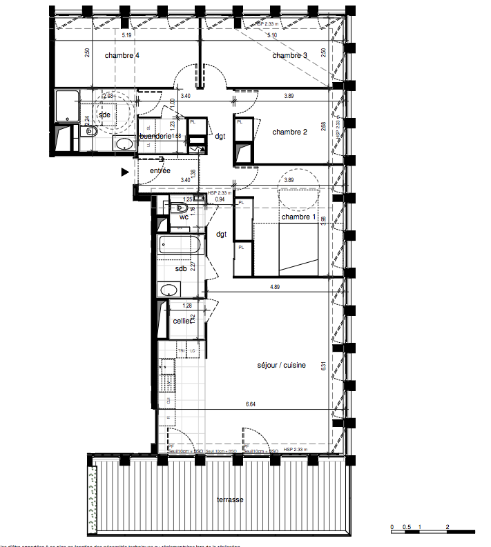
Appt. n°A1502

Programme "KI"
Prix
1 306 000€
Type
Appt. au 15ème
Pièces
T5
Surface
116.1 m²
Exposition
Est
Ville
Lyon 3ème (69003)
Livraison
1er trimestre 2027
Informations
01 81 80 39 10

Présentation du programme "KI"

A la Part-Dieu, dans le 3è arrondissement, Vianova vous propose une réalisation unique conçue par l’architecte de renom Sou Fujimoto, accompagné des cabinets d’architecture Dream et Exndo.

Au cœur de ce quartier, 2è pôle tertiaire français après la Défense, ce programme bénéficie d’une desserte exceptionnelle par tramways, bus, métro et se trouve à deux pas de la gare TGV et TER de Lyon-Part-Dieu qui connecte Paris, Marseille et Genève en 2h. A proximité immédiate, vous accéderez à l’un des plus grands centres commerciaux de France, l’Auditorium de Lyon et les fameuses Halles Paul Bocuse.

Véritable lieu de vie où il fera bon travailler et habiter, cette nouvelle adresse est composée de 550 m² de commerces, 22 000 m² de bureaux et 85 appartements.

Les logements situés du 9è au 15è étage bénéficient de vues inédites sur la ville et de 300 m² de jardins suspendus partagés

Les stationnements sont non dédiés, foisonnés et mutualisés.

Autres logements T5 du programme "KI"

Disponibilité Prix Genre Pièces Surface Étage
Voir
Disponible
1 141 000€ Appt. T5 123.2m2 12ème
DO NOT CLICK