215 300€
Appt. au 3ème
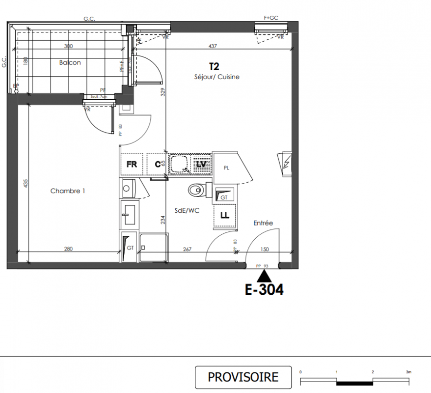
T2
39.67 m²
Ouest
Corbas (69960)
1er trimestre 2028
01 81 80 39 10
Présentation du programme "Programme neuf Corbas (69960)"
BAISSE DE PRIX pour l'achat de votre appartement neuf du 2 au 4 pièces avec espace extérieur à CORBAS ! Située dans la première couronne lyonnaise, Corbas est connue pour sa tranquillité tout en étant proche, des activités culturelles et économiques de Lyon. Composée d’appartements du studio au 4 pièces prolongés par des espaces extérieurs : balcon ou terrasse, notre résidence s’insère dans un paisible quartier pavillonnaire. Pour plus de sécurité, un parking en sous-sol est disponible. Notre emplacement stratégique permet une proximité immédiate avec une zone commerciale accessible en seulement 7 min* à pied, répondant à tous les besoins du quotidien. Un groupe scolaire composé d’une école primaire et d’une maternelle se situe à 3 et 5 min* à pied. La ville est également parsemée de nombreux parcs et installations sportives pour profiter des activités en plein air. Côté transport, en commun, Corbas est desservie par un réseau de bus efficace permettant de rejoindre les points stratégiques de la ville. À 6 min* à pied, l’arrêt du bus « Chemin de la Grange Blanche » (ligne 54.) permet de rejoindre la gare TER de Vénissieux en 20 min*. L’A7 et la rocade EST permettent d’accéder aux zones économiques de Lyon. Axée sur l’écologie, la commune bénéficie de pistes cyclables sécurisées permettent de se déplacer facilement et de favoriser les déplacements doux. Contactez-vite un de nos conseillers pour découvrir tous nos appartements neufs à Corbas et pour concrétiser votre projet immobilier neuf !
Autres logements T2 du programme "Programme neuf Corbas (69960)"
| Disponibilité | Prix | No | Genre | Pièces | Surface | Étage | Disponibilité | Prix | ||
|---|---|---|---|---|---|---|---|---|---|---|
| Voir | Disponible | 232 000€ | D001 | Appt. | T2 | 47.24m2 | 0-RDC | Disponible | 232 000€ | Voir |
| Voir | Disponible | 242 400€ | D302 | Appt. | T2 | 46.14m2 | 3ème | Disponible | 242 400€ | Voir |
| Voir | Disponible | 216 400€ | E101 | Appt. | T2 | 41.24m2 | 1er | Disponible | 216 400€ | Voir |
| Voir | Optionné | 211 200€ | E106 | Appt. | T2 | 39.6m2 | 1er | Optionné Mais pas encore vendu 😉 | 211 200€ | Voir |
| Voir | Disponible | 219 500€ | E201 | Appt. | T2 | 41.24m2 | 2ème | Disponible | 219 500€ | Voir |
| Voir | Disponible | 212 200€ | E204 | Appt. | T2 | 39.67m2 | 2ème | Disponible | 212 200€ | Voir |
| Voir | Disponible | 222 600€ | E301 | Appt. | T2 | 41.24m2 | 3ème | Disponible | 222 600€ | Voir |
| Voir | Disponible | 256 900€ | A402 | Appt. | T2 | 48.39m2 | 4ème | Disponible | 256 900€ | Voir |
| Voir | Disponible | 225 700€ | B004 | Appt. | T2 | 43.8m2 | 0-RDC | Disponible | 225 700€ | Voir |
| Voir | Disponible | 229 900€ | B101 | Appt. | T2 | 45.66m2 | 1er | Disponible | 229 900€ | Voir |
| Voir | Disponible | 233 000€ | B103 | Appt. | T2 | 45.09m2 | 1er | Disponible | 233 000€ | Voir |
| Voir | Disponible | 230 900€ | C001 | Appt. | T2 | 46.9m2 | 0-RDC | Disponible | 230 900€ | Voir |
| Voir | Disponible | 234 000€ | C002 | Appt. | T2 | 48.13m2 | 0-RDC | Disponible | 234 000€ | Voir |
| Voir | Disponible | 226 800€ | C004 | Appt. | T2 | 46m2 | 0-RDC | Disponible | 226 800€ | Voir |
| Voir | Disponible | 252 800€ | C005 | Appt. | T2 | 46.43m2 | 0-RDC | Disponible | 252 800€ | Voir |
| Voir | Disponible | 229 900€ | C103 | Appt. | T2 | 46m2 | 1er | Disponible | 229 900€ | Voir |
| Voir | Disponible | 235 100€ | C105 | Appt. | T2 | 46.9m2 | 1er | Disponible | 235 100€ | Voir |
| Voir | Disponible | 220 500€ | E005 | Appt. | T2 | 44.49m2 | 0-RDC | Disponible | 220 500€ | Voir |
| Voir | Disponible | 183 100€ | E104 | Appt. | T2 | 39.67m2 | 1er | Disponible | 183 100€ | Voir |