850 080€
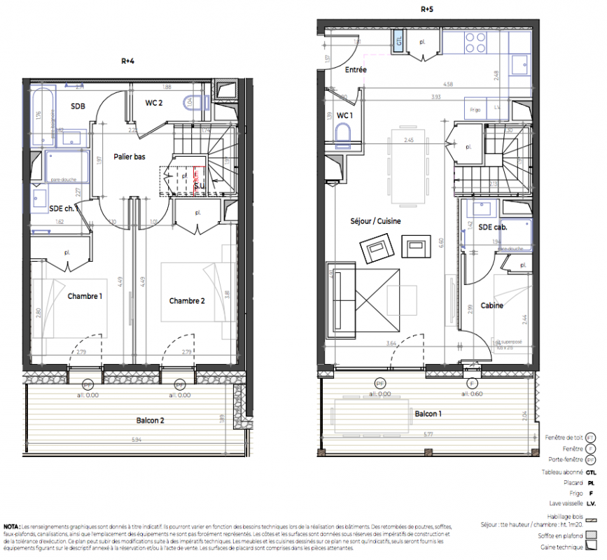
Appt. au 0-RDC
T3
82.05 m²
Est
Mont-de-Lans (38860)
3ème trimestre 2027
01 81 80 39 10
Présentation du programme "LES 2 ALPES / Les Loges Blanches / Résidence De Tourisme"
Nichée à 1650 m d’altitude, au cœur de l’Oisans, les 2 Alpes profite d’un emplacement privilégié qui l’a hissée au rang de station phare. Comptant parmi les plus hauts domaines d’Europe, elle donne accès à 425 hectares de pistes et garantit une glisse de Noel jusqu’au printemps grâce à son glacier culminant à 3600 m d’altitude. Et si le blanc lui sied à la perfection, la station tient aussi toutes ses promesses à la belle saison. Ses panoramas majestueux de haute montagne, ses merveilles naturelles telles que La Meije, le Parc national des Écrins, ses lacs et cascades aux eaux turquoises offrent ainsi autant d’endroits et d’instants propices à l’évasion. Dans ces paysages d’exception, une multitude d’activités sont à pratiquer : escalade, randonnée glaciaire, parapente, VTT, rafting… Votre future résidence neuve dévoile des lignes épurées, des façades immaculées habillées de bois et de pierre, en parfaite harmonie avec leur environnement. Les 3 bâtiments sont reliés de façon à créer une connexion architecturale, paysagère et humaine. Epousant l’inclinaison du terrain, ils jouent la carte de l’élégance discrète, avec des volumes redistribués sous forme de cascade : les différents niveaux sont ainsi échelonnés pour une intégration optimale.Le jeu des balcons vient séquencer et rythmer l’ensemble, offrant des vues exceptionnelles et multipliant les perspectives. Enfin l’angle d’implantation a été soigneusement choisi de manière à ce que chaque appartement neuf jouisse d’orientations avantageuses. Situées au centre même des Deux Alpes, avenue de la Muzelle, Les Loges Blanches bénéficient d’une situation idéale pour profiter d’une station qui vit et se vit toute l’année. Commerces de bouche et bonnes tables, adresses shopping et bien-être, lieux de festivité comme de détente… Quelques minutes à pied suffisent pour découvrir tous les attraits d’une ville animée et stimulante, hiver comme été, qui ancre l’art de la villégiature dans le XXIème siècle.Envie de prendre de la hauteur ? Les Loges Blanches font face à la célèbre télécabine du Jandri Express, qui permet d’accéder au glacier puis au funiculaire pour rejoindre le belvédère des Écrins à 3 400 m d’altitude.
Autres logements T3 du programme "LES 2 ALPES / Les Loges Blanches / Résidence De Tourisme"
Disponibilité | Prix | No | Genre | Pièces | Surface | Étage | Disponibilité | Prix | ||
---|---|---|---|---|---|---|---|---|---|---|
Voir | Disponible | 628 800€ | B41 | Appt. | T3 | 60.67m2 | 0-RDC | Disponible | 628 800€ | Voir |
Voir | Disponible | 722 400€ | C23 | Appt. | T3 | 79.38m2 | 0-RDC | Disponible | 722 400€ | Voir |
Voir | Disponible | 955 800€ | D4151 | Appt. | T3 | 94.07m2 | 0-RDC | Disponible | 955 800€ | Voir |
Voir | Disponible | 791 400€ | E4252 | Appt. | T3 | 71.62m2 | 0-RDC | Disponible | 791 400€ | Voir |