Prix
407 200€
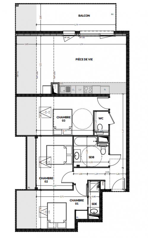
Type
Appt. au 3ème
Pièces
T4
Surface
79.6 m²
Exposition
-
Ville
Saint-Paul-en-Chablais (74500)
Livraison
3ème trimestre 2027
Informations
01 81 80 39 10

Présentation du programme "Bellevue"

[SUCCÈS COMMERCIAL - CERTAINS APPARTEMENTS EN BRS : PROFITEZ DE PRIX REDUITS 20% À 40% EN DESSOUS DU MARCHÉ !]
La résidence Bellevue à Saint-Paul-en-Chablais, composée d'appartements du studio au 5 pièces, dont un corps de ferme conservé et réhabilité, est idéalement située dans un cadre de vie idyllique et propose des vues dégagées sur les montagnes et le lac Léman. Une adresse à l'esprit campagne à proximité de la Suisse, des stations de ski et du lac Léman. Prestations soignées et espace extérieur (balcon, terrasse ou jardin privatif) pour tous les appartements. Terrain de pétanque, placette commune, verger collectif et jardin potager partagé favorisant la convivialité entre voisins. Grâce au statut LMNP (Loueur en Meublé Non Professionnel), bénéficiez d'une fiscalité avantageuse pour votre investissement, plus d'informations auprès de nos conseillers. 0800 800 874 (appel gratuit). Care Promotion Arc Alpin

Autres logements T4 du programme "Bellevue"

Disponibilité Prix Genre Pièces Surface Étage
Voir
Disponible
402 200€ Appt. T4 80.9m2 3ème
DO NOT CLICK