Ce lot n’est plus disponible chez VIANOVA ou est vendu.

Vous pouvez revenir dans 24h pour vérifier le stock à jour ou contacter un conseiller Vianova pour vérifier le stock en direct.
Vous pouvez également continuer votre recherche sur notre site « ici ».

Prix
188 000€
Type
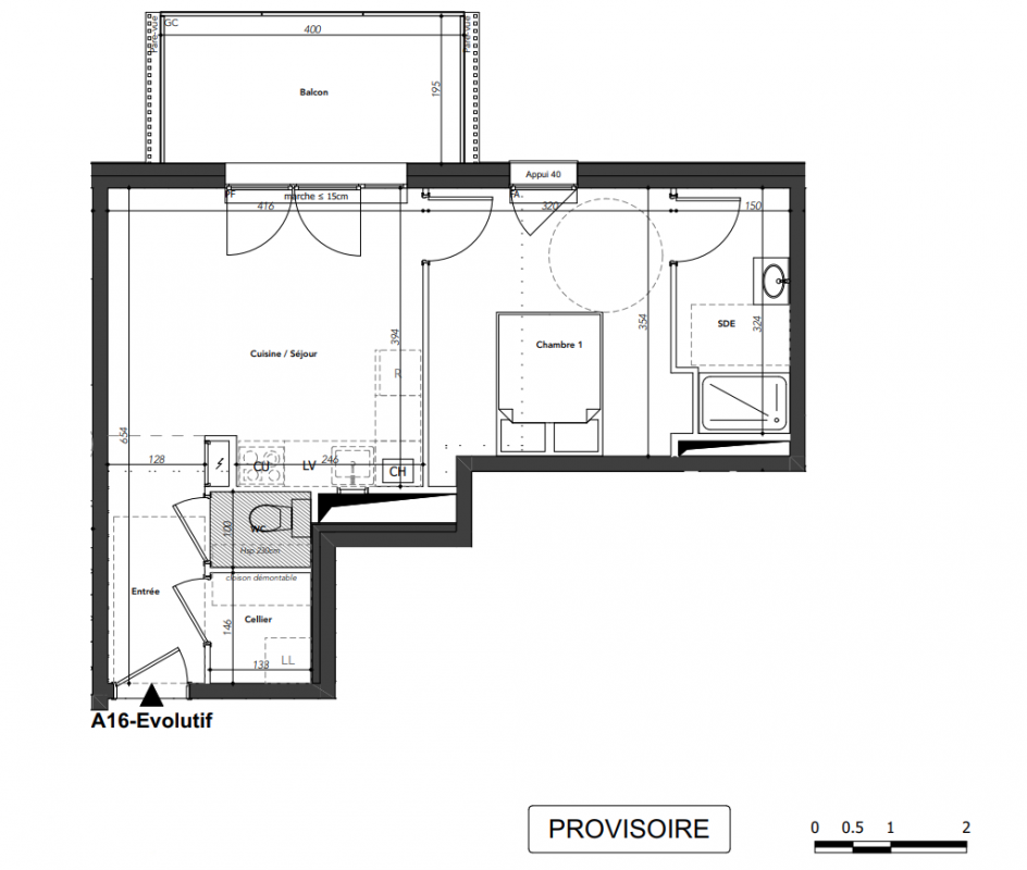
Appt. au 1er
Pièces
T2
Surface
39.03 m²
Exposition
Nord
Ville
Marignier (74970)
Livraison
2ème trimestre 2025
Informations
01 81 80 39 10

Présentation du programme "Programme neuf Marignier (74970)"

Derniers appartements 2 pièces disponibles en LIVRAISON IMMEDIATE à Marignier ! Ces deux derniers appartements 2 pièces représentent une opportunité rare dans un cadre naturel privilégié, en plein centre de Marignier. Chacun propose une belle pièce de vie avec cuisine ouverte, une chambre confortable, une salle d'eau, un balcon pour profiter des extérieurs et une place de stationnement incluse. Idéalement située, la résidence Programme neuf Marignier (74970) offre un environnement de qualité avec vues dégagées sur les montagnes, une orientation Sud/Sud-Ouest, et un accès facile aux commerces, aux écoles de la maternelle au collège (dans un rayon de 800 m) ainsi qu'à la gare à seulement 5 minutes à pied. Ne manquez pas cette dernière opportunité ! Contactez vite un de nos conseillers pour concrétiser votre projet immobilier à Marignier !

Autres logements T2 du programme "Programme neuf Marignier (74970)"

Pas de logements disponibles
DO NOT CLICK