Prix
686 000€
Type
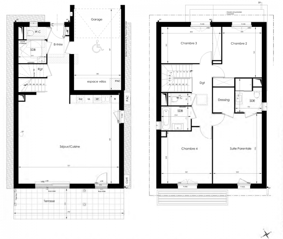
Maison au 0-RDC
Pièces
T5
Surface
133.74 m²
Exposition
Sud
Ville
Archamps (74160)
Livraison
4ème trimestre 2027
Informations
01 81 80 39 10

Présentation du programme "Opus Verde"

Le privilège d’une adresse nature à 15 min de Genève
Prisée pour sa localisation stratégique aux portes de Genève, à 15 min de l’aéroport international et à 2 min des autoroutes A40 et A41, Archamps bénéficie d’une très forte demande locative dans un décor préservé à l’offre restreinte. Pleinement intégrée dans la communauté d’agglomération du Genevois, elle héberge deux plateformes technologiques, un centre de convention et une technopole reconnue pour ses centres de recherche et de formation dans des secteurs de premier plan.Idéale pour concrétiser un investissement patrimonial de choix, l’adresse vous permet également d’optimiser votre fiscalité grâce au dispositif LMNP.

Autres logements T5 du programme "Opus Verde"

Disponibilité Prix Genre Pièces Surface Étage
Voir
Disponible
690 000€ Maison T5 133.74m2 0-RDC
DO NOT CLICK