Prix
246 300€
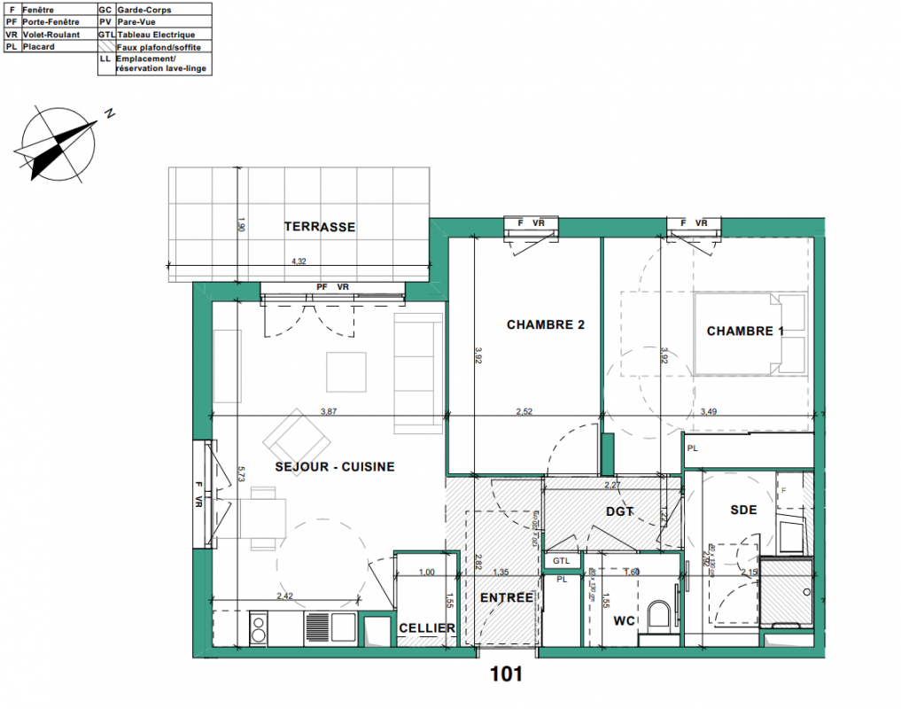
Type
Appt. au 1er
Pièces
T3
Surface
61 m²
Exposition
Nord-Ouest
Ville
Aubenas (07200)
Livraison
4ème trimestre 2025
Informations
01 81 80 39 10

Présentation du programme "LE MAS DES OLIVIERS"

Découvrez la nouvelle Résidence Services Séniors à Aubenas !! Savourez la quiétude des paysages ardéchois, à l'ombre des oliviers... Ce nouveau lieu de vie, à l'architecture moderne et authentique, prend place dans un environnement paisible et convivial, tout en bénéficiant d'un emplacement de choix, proche des transports et des commodités !Cette résidence sécurisée avec gardien offre une large gamme d'appartements du T1 au T3 ainsi que 1000m d'espace club entièrement dédiés aux séniors: un bassin d'aquagym, un espace beauté, un restaurant, un bar ... Préparez votre retraite avec un investissement totalement sécurisé : revenus complémentaires non fiscalisés, récupération de la TVA, loyers garantis par un bail commercial de 11 ans, pérennité et sécurité de l'investissement.A découvrir sans attendre !Pour toutes informations complémentaires, prenez contact avec nous !

Autres logements T3 du programme "LE MAS DES OLIVIERS"

Disponibilité Prix Genre Pièces Surface Étage
Voir
Disponible
246 060€ Appt. T3 61m2 1er